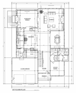
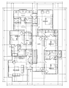
An exceptional presale opportunity awaits on a private, wooded lot in the heart of North Hills. A quiet stream borders the rear of the property, providing a serene and natural setting rarely found in this prime location. Custom home construction is available, offering the opportunity to craft a one-of-a-kind residence tailored to your lifestyle.
Inquire today to discover this unique offering.


Posted in Raleigh